





| 網目數 | 微米(μm) | 網目數 | 微米(μm) |
| 2 | 8000 | 100 | 150 |
| 3 | 6700 | 115 | 125 |
| 4 | 4750 | 120 | 120 |
| 5 | 4000 | 125 | 115 |
| 6 | 3350 | 130 | 113 |
| 7 | 2800 | 140 | 109 |
| 8 | 2360 | 150 | 106 |
| 10 | 1700 | 160 | 96 |
| 12 | 1400 | 170 | 90 |
| 14 | 1180 | 175 | 86 |
| 16 | 1000 | 180 | 80 |
| 18 | 880 | 200 | 75 |
| 20 | 830 | 230 | 62 |
| 24 | 700 | 240 | 61 |
| 28 | 600 | 250 | 58 |
| 30 | 550 | 270 | 53 |
| 32 | 500 | 300 | 48 |
| 35 | 425 | 325 | 45 |
| 40 | 380 | 400 | 38 |
| 42 | 355 | 500 | 25 |
| 45 | 325 | 600 | 23 |
| 48 | 300 | 800 | 18 |
| 50 | 270 | 1000 | 13 |
| 60 | 250 | 1340 | 10 |
| 65 | 230 | 2000 | 6.5 |
| 70 | 212 | 5000 | 2.6 |
| 80 | 180 | 8000 | 1.6 |
| 90 | 160 | 10000 | 1.3 |




| 預過濾精度 | 過濾器精度 |
| 3mm | <500μm |
| 10mm | ≥500μm |
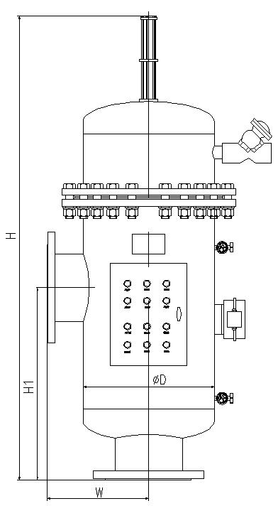
| 型號 | 管徑(mm) |
流量 (m3/h) |
過濾面積 (cm2) |
H (mm) |
H1 (mm) |
W (mm) |
D (mm) |
重量 (Kg) |
| HY-LSQ-100 | 50 | 15 | 1030 | 636 | 350 | 230 | 273 | 63 |
| HY-LSQ-150 | 80 | 35 | 1030 | 636 | 350 | 230 | 273 | 72 |
| HY-LSQ-200 | 100 | 60 | 1420 | 690 | 380 | 250 | 273 | 86 |